TL_SAILS

Moderator: Uwe

TL_SAILS

Beitrag: #1Beitragvon Newnip » 23.11.2011, 19:21


Guten Abend Allerseits

In den letzten Wochen habe ich meine komplette Segelgarderobe überarbeitet. Neben einem neuen A und B Rigg, wie ich sie herkömmlich segelte, kommt neu ein schlankes, hohes AA Rigg. Es wird sehr interessant sein, welches A Rigg sich bei mir intern durchsetzten kann. Es gefallen mir beide sehr gut. Vom hohen Rigg erhoffe ich mir mehr Höhe am Wind. Ansonsten lass ich mich überraschen.

An den Formen meiner Riggs hat sich nicht viel geändert. An der Bauausführung hingegen schon! Auf Sandwichbäume verzichte ich bei dieser Rigg-Generation. Ich verwende nun dünnwandige Rohre welche ich mit Carbonrovings zusammenfüge. Desweiteren werden alle Beschläge, welche ich bis anhin mit Klemmschiebern oder Kabelbindern gefertigt habe, durch verstellbare „Knoten“ ersetzt. Die Konstruktion ist leicht, windschlüpfrig und simpel!

Ein Experiment sind die Segelköpfe: Die habe ich nun mit einer relativ langen recht vertikal stehenden Segellatte ausgestattet, wie das auch John Tushingham aus England bei den MMs zeigt. Dadurch habe ich sichtbar mehr Bauch bis weit oben im Segel. Ob sich dies aber tatsächlich bewährt, wird sich zeigen.

Als Segelmaterial verwende ich für Fock und die unteren Segelbahnen des Grosssegels Gittermylar. Für die oberste Grosssegelbahn kommt eine steifere Mylarfolie zum Einsatz welche hilft, die fetten Tops auszustellen. Verstärkungen sind aufs nötigste reduziert und bestehen aus Ikarex.

Bei den beiden A Riggs sind wieder „Vangs“ oder „Babybäume“ für die Fock verbaut. Beim B Rigg habe ich darauf verzichtet.

Viele Grüsse
Tobi
Dateianhänge
a.JPG
neues Signet für TL_Sails
b.JPG
die neuen Riggs
c.JPG
die neuen Riggs
d.JPG
square head
e.JPG
Verstellsystem mit Knöpfen
f.JPG
Vang!
Benutzeravatar
Newnip
Alter Hase
Alter Hase
 
Beiträge: 216
Registriert: 11.10.2011, 21:42

Re: TL_SAILS

Beitrag: #2Beitragvon Newnip » 23.11.2011, 19:34


Bei winterlichen Aussichten und Temperaturen konnte ich heute bei sehr schwachem Wind meine zwei neuen A Riggs testen. Dabei diente mir Kaspar Schlegels newnip SUI 12, welche mit einem neuen A- Grosssegel wie oben gezeigt ausgestattet war, als Referenz. Es war für uns beide Eindeutig: Bei den herrschenden Bedingungen war das niedrigere A-Rigg besser! Kann sein, dass ich die Mastposition fürs hohe Rigg noch anpassen sollte. Ich werde das testen. Mit dem niedrigen Rigg war das Boot spritziger, weniger und beschleunigte besser!
Dateianhänge
g.JPG
newnip_SUI_12_A_Rigg
h.JPG
newnip_SUI_6_AA_Rigg
i.JPG
newnip_SUI_6_AA_Rigg
Benutzeravatar
Newnip
Alter Hase
Alter Hase
 
Beiträge: 216
Registriert: 11.10.2011, 21:42

Re: TL_SAILS

Beitrag: #3Beitragvon Newnip » 23.11.2011, 19:37


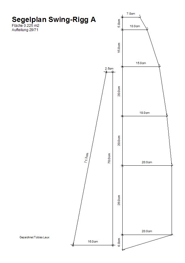
Da ich immer wieder einmal nach dem Segelplan für mein
A und B Rigg gefragt werde, möchte ich diese hier ebenfalls
hochstellen:
Dateianhänge
segelplanariggnip65.JPG
A_Rigg
segelplanbriggnip65.JPG
B_Rigg
Benutzeravatar
Newnip
Alter Hase
Alter Hase
 
Beiträge: 216
Registriert: 11.10.2011, 21:42

Re: TL_SAILS

Beitrag: #4Beitragvon Admin1 » 23.11.2011, 20:02


Servus Tobi,

toll das Du uns Deine neusten Arbeiten vorstellst .. Danke! Und höchsten :respekt: ..macht auch nicht jeder.

Newnip hat geschrieben:Ein Experiment sind die Segelköpfe: Die habe ich nun mit einer relativ langen recht vertikal stehenden Segellatte ausgestattet, wie das auch John Tushingham aus England bei den MMs zeigt. Dadurch habe ich sichtbar mehr Bauch bis weit oben im Segel. Ob sich dies aber tatsächlich bewährt, wird sich zeigen.


Ich denke so ein FatTop im Gross sollte man nicht übertreiben, Deine 7cm sind sicher ein guter Wert.
In der Grössenordnung 6-7cm liege ich auch meist. Bei der Fock war ich auch schon bei 4cm Kopfbrett,
bei meinem neusten Rigg bin ich wieder auf 2cm runter .. Ich würde fast sagen es ist besser.
Man sollte immer eine Elliptische Auftriebsverteilung im Hinterkopf haben (und auch die Fock dabei nicht vergessen) Deswegen würde ich das Top auch nicht noch breiter machen und bin mir nicht sicher ob Dir ein stärkerer Bauch da oben wirklich nutzt? Stichwort Druckausgleich Luv-Lee Seite -> Wirbelschleppe.
Aber sowas kann Achim sicher besser erklären ;)
Admin1
Administrator
Administrator
 
Beiträge: 2314
Registriert: 27.09.2011, 17:20
Titel: Admin

Re: TL_SAILS

Beitrag: #5Beitragvon RainerM » 23.11.2011, 21:58


Hallo Tobi,
da warst du aber fleißig. :respekt:

Kannst du bitte mal die Gewichte der einzelnen Riggs bekannt geben?
Danke!
VG Rainer
GER 198, JethRace, JethRock
MPX 2,4GHz
Benutzeravatar
RainerM
Alter Hase
Alter Hase
 
Beiträge: 330
Registriert: 29.09.2011, 11:08
Titel: GER 198
Segelnummer: GER 198

Re: TL_SAILS

Beitrag: #6Beitragvon Newnip » 23.11.2011, 22:17


hi Rainer

Die beiden A Riggs wiegen segelfertig mit Lager 48g. Das AA Rigg ist nicht schwerer obwohl höher, da ich bei den Verbindungen mit Rovings und Harz einiges sparsamer war. Ist das Gewicht ok? ;-)

Grüsse
Tobi
Benutzeravatar
Newnip
Alter Hase
Alter Hase
 
Beiträge: 216
Registriert: 11.10.2011, 21:42

Re: TL_SAILS

Beitrag: #7Beitragvon RainerM » 24.11.2011, 06:37


Hallo Tobi,
mit Lagerung sind das ausgezeichnete Werte, bzw. Gewichte. :tup:
Meine Segelgarmitur hat folgende Gewichte:
- AA-Rigg, 46g; 3P-Mast + 25g Gittermylar; ohne Lager
- A-Rigg,46g; light-Mast + 25g Gittermylar; ohne Lager
- B-Rigg, 53g; light-Mast + 40g Gittermylar; ohne Lager
- C-Rigg, 49g; 2P-Mast + 40g Gittermylar; ohne Lager
- D-Rigg, 46g; 2P-Mast + 40g Gittermylar; ohne Lager
VG Rainer
GER 198, JethRace, JethRock
MPX 2,4GHz
Benutzeravatar
RainerM
Alter Hase
Alter Hase
 
Beiträge: 330
Registriert: 29.09.2011, 11:08
Titel: GER 198
Segelnummer: GER 198

Re: TL_SAILS

Beitrag: #8Beitragvon haegar » 24.11.2011, 09:10


Hallo, Tobi,
Bei Bauch sehr weit oben musst Du aufpassen, dass Du keinen Strömungs"kurzschluss" über den breiten Segelkopf bekommst. Der erzeugt heftige Wirbel und produziert nur Widerstand, keinen Vortrieb. Idealerweise sollte der vom Segel erzeugte Lift am Kopf Null werden (=kein Druckunterschied zwischen Luv und Lee). Kriegt man das Abnehmen des Lifts von der Segelmitte zum Kopf im Kurvenverlauf einer Ellipse hin, ergibt sich aus der Theorie der geringstmögliche Widerstand eines Segel bzw. Tragflächenprofils. Das ist übrigens einer der Gründe, warum ein Segel twisten muss.

Wenn Du Dir mal große Boote anschaust, wirst Du feststellen, dass die im Fat Head auch kein Profil mehr haben. Der Twist wird dann so eingestellt, dass auch der Anstellwinkel des Kopfes Null wird.

Ich bin auf Deine Erfahrungen mit der steilen Latte gespannt. Ich habe das bisher nie richtig hinbekommen. Meine Erfahrung ist, dass die Kontrolle des Achterlieks immer schwieriger wird, je steiler die oberste Latte steht. Das mag allerdings auch mit an der Art der Kopfverstärkungen liegen. Ich selbst habe mich daher auf einen Winkel von etwa 30 Grad gegenüber der Horizontalen eingeschossen.
Gruß aus Teltow
Achim
______________________________________________________
Wer die Zeit anhalten will, sollte es mal mit Sekundenkleber probieren ...

GER 253 | MantaEVO / Stingray| 2,4 GHz
p-sails.de
http://p-sails.blogspot.de/
Benutzeravatar
haegar
Foren Legende
Foren Legende
 
Beiträge: 1982
Registriert: 27.09.2011, 22:36
Wohnort: Teltow
Titel: Wannseeat
Segelnummer: GER 253
Bootstyp: MantaEVO, Stingray

Re: TL_SAILS

Beitrag: #9Beitragvon Newnip » 24.11.2011, 14:52


hi Achim!

Ich bin mir bewusst, dass ein Profil im Topbereich nicht von Vorteilen sein muss. Aber die neuen Segel haben immer noch sehr wenig Profil im Top! Abschlissen tut das Segel sowieso mit einem geraden Topliek. Aber so ab 8cm unterhalb des Tops habe ich nun bei allen Segeln ein sichtbares Profil. Wenn du dir mein altes A Rigg anschaust, siehst du, dass ich oben sogar eine dicke Folie plus eine Carbon Latte verwendet habe um das Segel auszustellen. Das alte Segel hat also gar kein Profil im Top! Ich wollte nun mal ausprobieren wie es mit ein wenig mehr Profil geht. Wenn ich mit Grosssegel der Konkurrenz vergleiche habe ich jedoch praktisch kein Profil drin!

Der Trimm meiner Segel und die Kontrolle vom Segelkopf und Acherliek ist übrigens absolut unproblematisch bei den neuen Segeln. Dazu trägt eine sehr stimmige Vorlieksrundung sowie die steife Mylarfolie der oberen Segelbahn beim Grosssegel bei!

Grüsse
Tobi
Dateianhänge
x.JPG
Topp meines alten A Riggs
Benutzeravatar
Newnip
Alter Hase
Alter Hase
 
Beiträge: 216
Registriert: 11.10.2011, 21:42

Re: TL_SAILS

Beitrag: #10Beitragvon haegar » 24.11.2011, 15:03


ja, so ungefähr sieht das bei mir auch immer aus, allerdings schneide ich das Achterliek da meist etwas gerader
Gruß aus Teltow
Achim
______________________________________________________
Wer die Zeit anhalten will, sollte es mal mit Sekundenkleber probieren ...

GER 253 | MantaEVO / Stingray| 2,4 GHz
p-sails.de
http://p-sails.blogspot.de/
Benutzeravatar
haegar
Foren Legende
Foren Legende
 
Beiträge: 1982
Registriert: 27.09.2011, 22:36
Wohnort: Teltow
Titel: Wannseeat
Segelnummer: GER 253
Bootstyp: MantaEVO, Stingray
Nächste

Zurück zu Rigg- und Segelherstellung

cron